💎 Maison de commerce rénovée – Un bien d’exception au cœur de LIEGE 💎
Découvrez cette maison de commerce entièrement rénovée avec goût, où chaque détail a été pensé avec des matériaux haut de gamme.
Une qualité indéniable qui séduira les amateurs de prestige comme les investisseurs en quête d’un bien rare.
Idéal pour une activité commerciale ou profession libérale.
📍 Situation idéale :
À seulement 10 mètres du centre animé de Liège, vous profitez d’un emplacement stratégique mêlant dynamisme urbain et confort de vie.
🏠 Composition du bien :
💈 Rez-de-chaussée – 42 m² : Actuellement aménagé en salon de coiffure, cet espace lumineux et fonctionnel offre de multiples possibilités commerciales. Parfait pour une activité existante ou un nouveau projet professionnel.
🏠 Étage en duplex
Un superbe duplex rénové alliant charme et modernité :
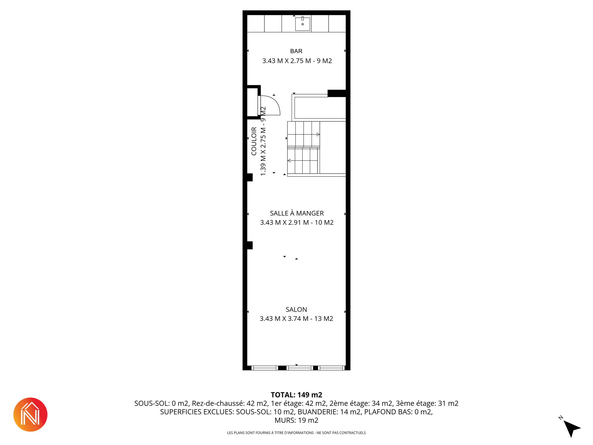
Un séjour de 23 m² avec son bar
Une chambre élégante et confortable disposant de son propre dressing
Une cuisine équipée, avec placards intégrés pour machines
Une terrasse sur les toits de Liège
Finitions soignées, atmosphère chaleureuse et matériaux premium
💎 Le luxe en plein centre-ville !
Ce bien unique offre un univers magique, où fonctionnalité commerciale et raffinement résidentiel se rencontrent harmonieusement.
✔ Libération: à l’acte
💰Faire offre à partir de 349.000 € ( sous réserve d’acceptation du propriétaire )
Revenu cadastral: 1.730€
📞 Contactez dès aujourd’hui Nigel IMMO au 04 264 38 04
🌐 Plus d’infos, visite virtuelle en 360°, plan 2D, RDV en ligne 7/7j sur : WWW.NIGEL-IMMO.BE
Venez découvrir cette pépite rare !



























