Bureau Neuf de Standing à Seraing – 121 m² + Terrasse de 25 m²
Nigel IMMO vous propose ce magnifique espace professionnel neuf, idéalement situé à Seraing, à proximité immédiate des grands axes et commodités, parfait pour une profession libérale, une entreprise ou un espace de coworking.
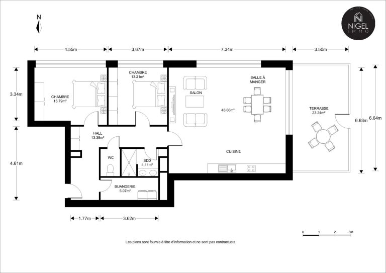
Dès l’entrée, vous serez séduit par un open-space lumineux de 49 m², baigné de lumière naturelle grâce à une large baie vitrée donnant accès direct à une terrasse de 25 m², idéale pour des pauses détente ou des réceptions clients en extérieur.
️Espaces de travail optimisés :
Deux bureaux indépendants (15 m² et 13 m²), parfaits pour accueillir collaborateurs ou réunions privées.
Salle d’eau moderne avec douche à l’italienne (parfaite pour les longues journées ou les sportifs).
WC séparé et local technique / archives, ajoutant praticité et fonctionnalité.
✨ Prestations haut de gamme pour un confort optimal au travail :
✔ Accès PMR avec ascenseur.
✔ Chauffage central au gaz à condensation haut rendement.
✔ Parlophone avec ouverture automatisée.
✔ Ventilation double flux pour un air intérieur sain.
✔ Possibilité d’acquérir emplacements de parking et garages avec caves.
Prix : à partir de 274.000 € HTVA (TVA 21 % applicable)
️ Découvrez ce bien en détail : vidéo de présentation, visite virtuelle 360°, plans 2D et bien plus encore sur WWW.NIGEL-IMMO.BE !
Contactez-nous dès maintenant pour organiser une visite et installez votre activité dans un cadre professionnel moderne et prestigieux.



















