🏠 Maison avec gros potentiel – possibilité de 2 logements ou plus sous réserve de permis urbanistique.
NIGEL IMMO vous propose en exclusivité cette maison 2 façades à rénover entièrement, développant une surface habitable de 152 m² (selon PEB) et implantée sur une parcelle de 165 m², idéalement située à Liège, à proximité immédiate de toutes les commodités : commerces, écoles, transports en commun, axes autoroutiers…
La surface totale + l’espace entrepôt est de 257 m².
➡️ Composition du bien :
– Rez-de-chaussée (96 m²) : grand garage menant à un espace extérieur ou un entrepôt de 80 m² (espace de stockage à couvrir, parking ou local vélo), WC indépendant, spacieux hall d’entrée.
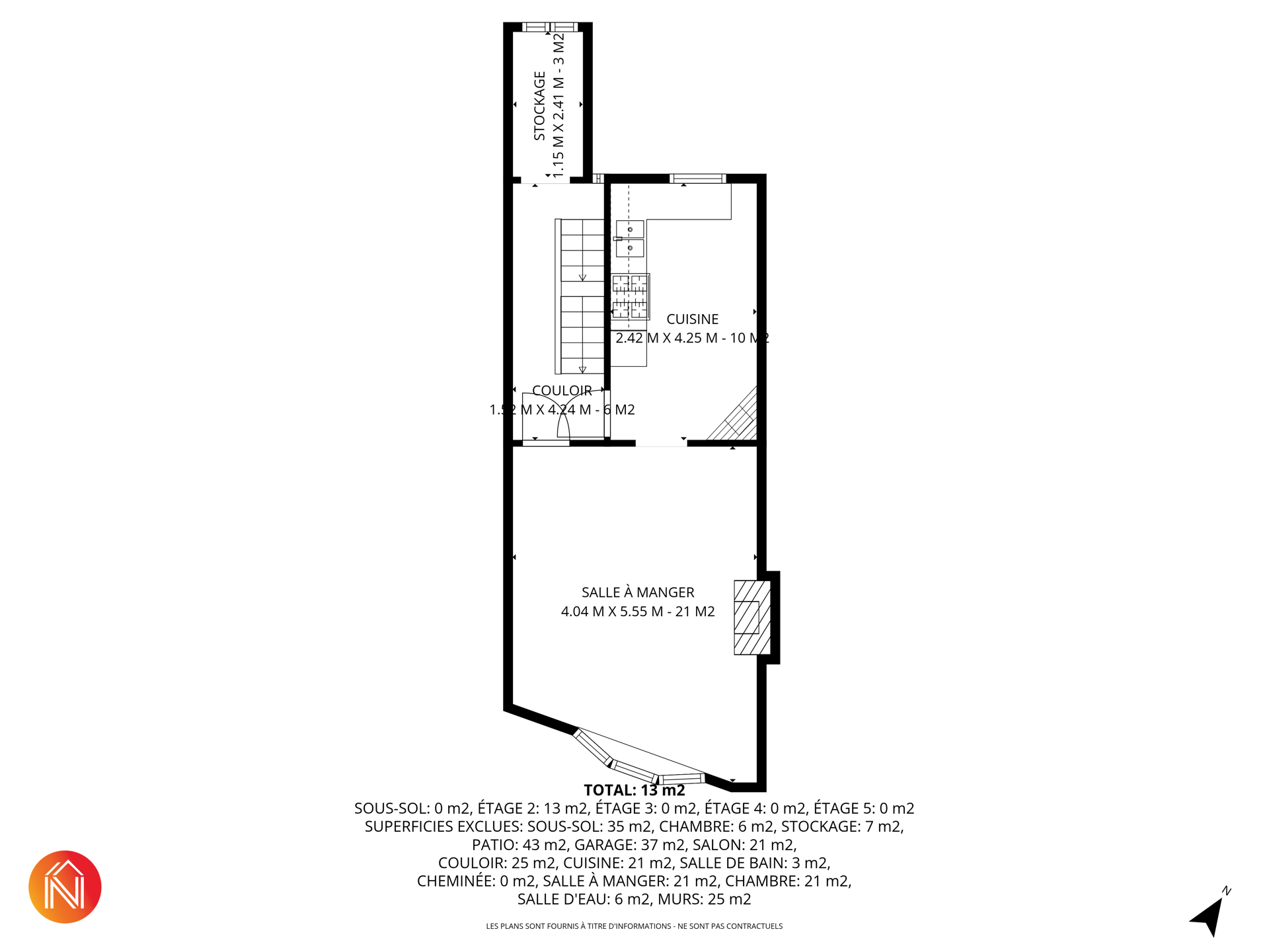
– 1ᵉʳ étage (40 m²) : hall desservant une cuisine de 10 m², salle de bains, séjour lumineux de 21 m².
– 2ᵉ étage (40 m²) : espace de rangement, seconde pièce cuisine, second séjour. Ces espaces peuvent être transformés en 2 chambres distinctes.
– 3ᵉ étage (37 m²) : une chambre de 21 m² ainsi qu’un hall menant à une salle de bains.
– Sous-sol : deux caves (41 m²).
L’extérieur offre une agréable cour de 43 m², idéale pour y aménager une terrasse ou un espace détente, anciennement un entrepôt.
Informations complémentaires :
Deux compteurs électriques existants, renforçant le potentiel pour un aménagement en deux unités de logement (sujet à validation urbanistique). Compteurs de 1996 et 1997.
Ce bien à rénover entièrement représente une opportunité rare pour laisser libre cours à vos idées : grande habitation familiale, colocation, investissement locatif, division possible…
📌 Informations pratiques : PEB : G – 720 kWh/m².an, revenu cadastral : 656 €, FAIRE OFFRE A PARTIR DE 99.000 € (sous réserve d’acceptation des propriétaires).
🔎 Vidéo, visite virtuelle 360°, plans 2D et prise de rendez-vous en ligne 24h/24 et bien plus sur WWW.NIGEL-IMMO.BE

























