🌿 Vaste ferme de caractère à Herve – + de 2.000 m² de terrain 🌿
Située au cœur de la charmante et verdoyante commune de Herve, cette authentique ferme pleine de cachet vous séduira par ses volumes impressionnants, son potentiel exceptionnel et son cadre campagnard privilégié.
Implantée sur une superbe parcelle de plus de 2.000 m², cette propriété offre un environnement paisible, idéal pour les amateurs d’espace, de nature et de projets ambitieux.
🏡 Composition du bien :
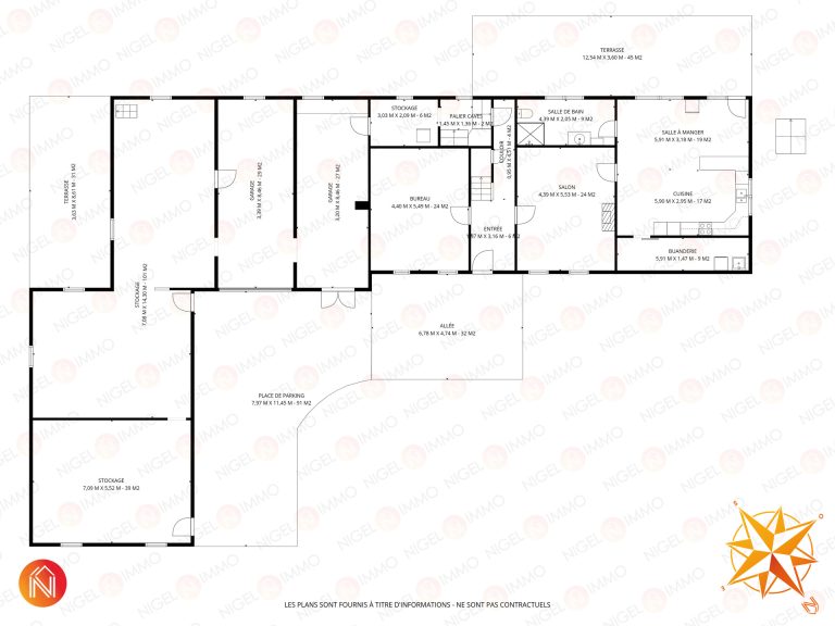
Une habitation principale développant ± 263 m² habitables
3 chambres, dont une au rez-de-chaussée, ou bureau de 24 m²
Une spacieuse pièce de 69 m² aménageable sous les combles
Un séjour chaleureux avec insert à pellets 🔥, parfait pour des ambiances cosy
Une cuisine ouverte sur la salle à manger, avec accès direct à la terrasse plein Sud de 45 m²
Une buanderie de 9 m²
🌳 Extérieurs & confort :
Nombreuses possibilités d’aménagement (habitation, profession libérale, gîte, investissement…)
Dépendances et granges offrant un potentiel de transformation remarquable
Grand jardin avec vue dégagée exceptionnelle sur l’horizon
2 garages, allée privative et espaces de parking
Doubles terrasses spacieuses, idéalement orientées
Environnement calme, bucolique et recherché
Proximité des commodités et axes principaux, tout en conservant une tranquillité absolue
⚡ Informations pratiques :
Châssis double vitrage PVC et bois
Chauffage central mazout + insert à bois
Panneaux photovoltaïques
PEB : D
RC : 589 €
✔ Libération : max 3 mois après les actes moyennant une indemnité de 800€/mois prorata temporis.
💰 Faire offre à partir de 499.000 € (sous réserve d’acceptation du propriétaire)
📞 Contactez dès aujourd’hui Nigel IMMO au 04 264 38 04
🌐 Plus d’infos, visite virtuelle 360°, plans 2D et prise de rendez-vous 7j/7 sur : www.nigel-immo.be





































