🏡 Vaste propriété de caractère – 278 m² habitables – Vente en nue-propriété – Wanze
Située à Wanze, dans un environnement agréable et verdoyant, cette vaste propriété séduit par ses volumes généreux, sa luminosité et son important potentiel.
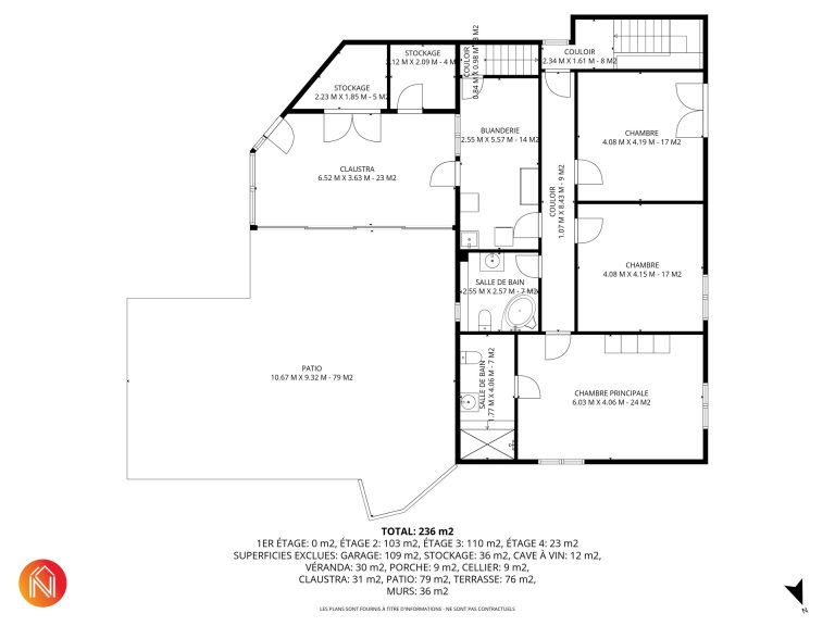
Développant plus de 278 m² habitables, elle offre des espaces de vie confortables et parfaitement adaptés à une grande famille ou à un investisseur recherchant une opportunité patrimoniale.
🔹 Composition du bien:
Rez-de-chaussée :
Vastes pièces de vie lumineuses
Séjour spacieux de ± 46 m²
Grande cuisine fonctionnelle
Véranda de ± 30 m²
Bureau (± 6 m²)
Cellier
Cave à vin
Vaste garage de ± 46 m²
Étage :
Suite parentale
Deux chambres supplémentaires
Mezzanine offrant un bel espace polyvalent
Buanderie
Salle de bains
🌿 Extérieurs
Cour de ± 71 m²
Serres
Superbe parcelle de 3.732 m²
🔧 Équipements & techniques
Châssis double vitrage PVC avec volets
Différents systèmes de chauffage
PEB : E
Électricité non conforme
Revenu cadastral : 1.233 €
💼 Modalités de vente – Vente en nue-propriété
Prix de la nue-propriété : ± 290.000 € (paiement différé)
Modalités :
• 20.000 € payés à l’acte
• 1.500 € par mois, indexés, pendant une durée de 15 ans
Au terme des 15 ans, vous devenez pleinement propriétaire (réunion de la nue-propriété et de l’usufruit), ou plus tôt en cas de décès des occupants.
Simulation indicative :
Valeur vénale estimée du bien : ± 500.000 €
À titre comparatif, pour un achat classique financé à 3,5 % sur 25 ans, la mensualité serait d’environ 2.488 €/mois, soit environ 246.000 € d’intérêts sur la durée totale du crédit.
Possibilité de revendre le bien au décès des occupants afin de récupérer de la liquidité, tout en poursuivant le paiement aux héritiers.
Opportunité patrimoniale avec effet de levier exceptionnel.
💰Faire offre à partir de 290.000 € (20.000 € à l’acte + 1.500€/mois sur 15 ans)
🌐 Plus d’infos, visite virtuelle en 360°, plan 2D, RDV en ligne 7/7j sur : WWW.NIGEL-IMMO.BE


































