Opportunité d’investissement sur une construction récente au calme de Jemeppe-sur-Meuse avec Nigel IMMO !
🧱Nigel Immo est heureux de vous présenter cet immeuble de rapport composé de 2 logements dans un état parfait d’entretien, d’une superficie totale de 211 m², sur une parcelle de 330m², idéalement situé à proximité de toutes les commodités !
🏡Caractéristiques principales : Rentabilité actuelle : 1.400 €/mois. (pouvant être largement revue)
✨Espaces :
Communs : 3 caves, un hall d’entrée, du parking.
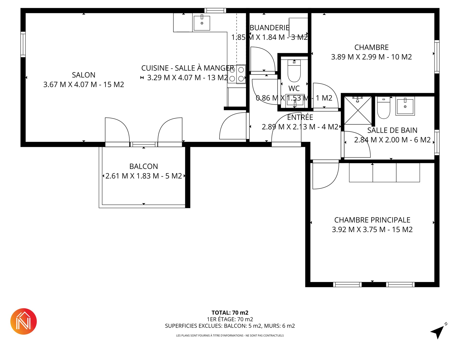
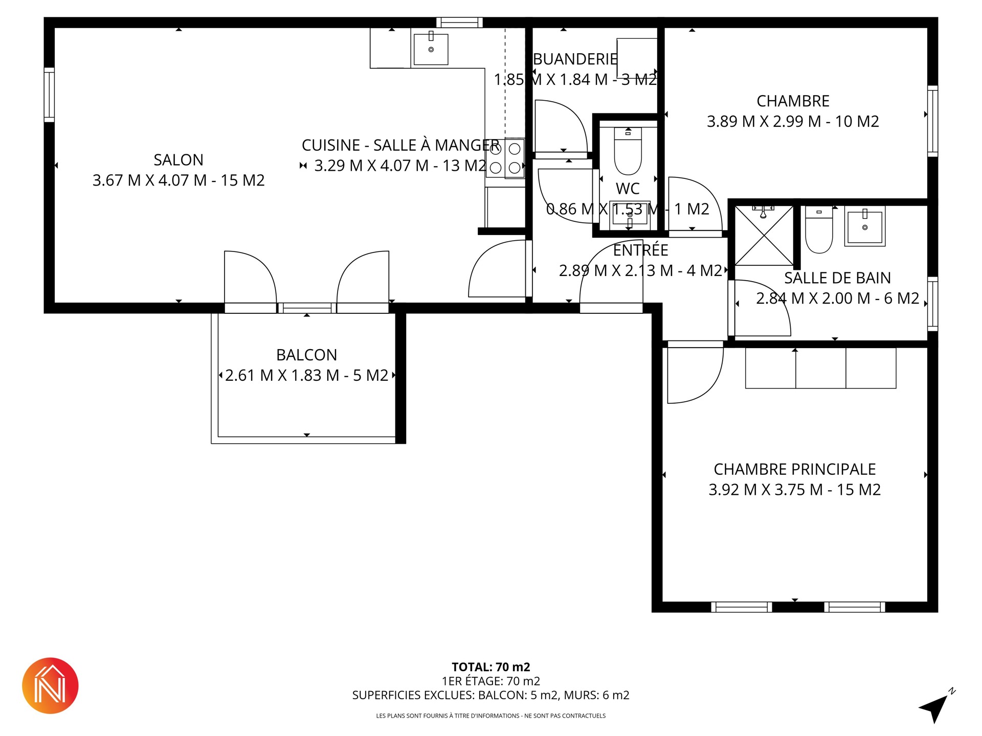
Appartement au RDC de 84 m²: agréable et lumineux séjour avec terrasse et jardin, cuisine ouverte, salle de douche, buanderie, 2 chambres et cave. Actuellement loué 650€/mois (bail à vie).
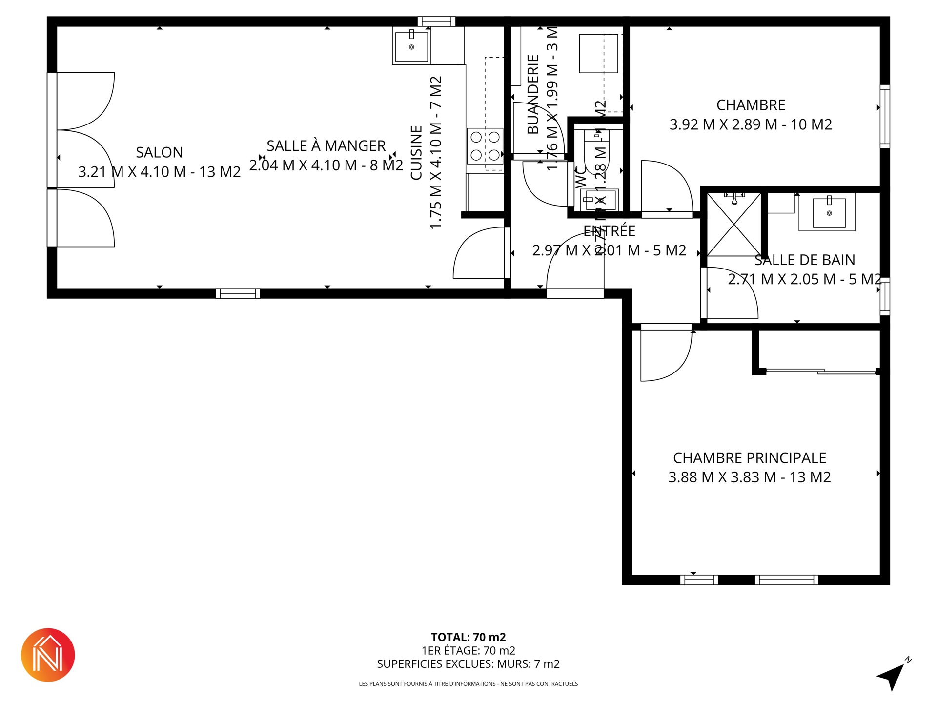
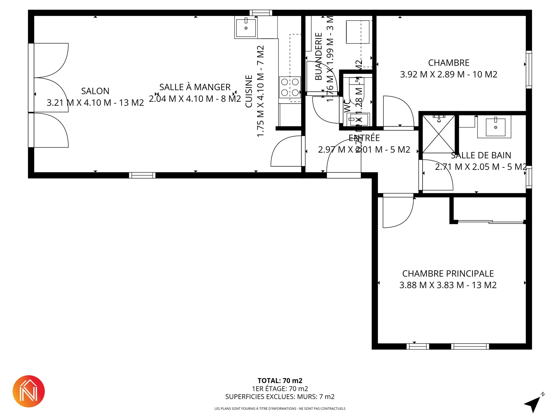
Appartement au 1er de 84 m²: agréable et lumineux séjour avec balcon, cuisine ouverte, salle de douche, buanderie, 2 chambres et cave. Actuellement loué 750€/mois avec un bail de courte durée.
✅ Points forts :
✔ Bâtiment récent : 2015
✔ Conformité électrique : jusqu’en 2044
✔ Compteurs séparés : 2 compteurs d’eau et d’électricité, 2 compteurs de gaz
✔ Chaudières individuelles gaz à condensation, châssis DV PVC
✔ Electricité conforme pour l’acte
✔ Proximité des commodités : commerces, transports et écoles
🧱 Informations pratiques :
PEB : C (190 & 196).
Revenu cadastral total:1.738€.
💶 Conditions & informations pratiques
💰 Offre à partir de 339.000 € (sous réserve d’acceptation des propriétaires)
📑 Documents disponibles : certificat PEB, BDES, plans 2D, matrice cadastrale.
🌐 Visite virtuelle 360°, plans 2D et prise de rendez-vous en ligne 24h/24 sur www.nigel-immo.be
📞 Contact
Pour plus d’informations ou organiser une visite, contactez dès aujourd’hui Nigel IMMO au 04/264.38.04 ou par email à info@nigel-immo.be



























