BARCHON – Spacieuse maison familiale 5 chambres avec terrasse, parking et potentiel impressionnant !
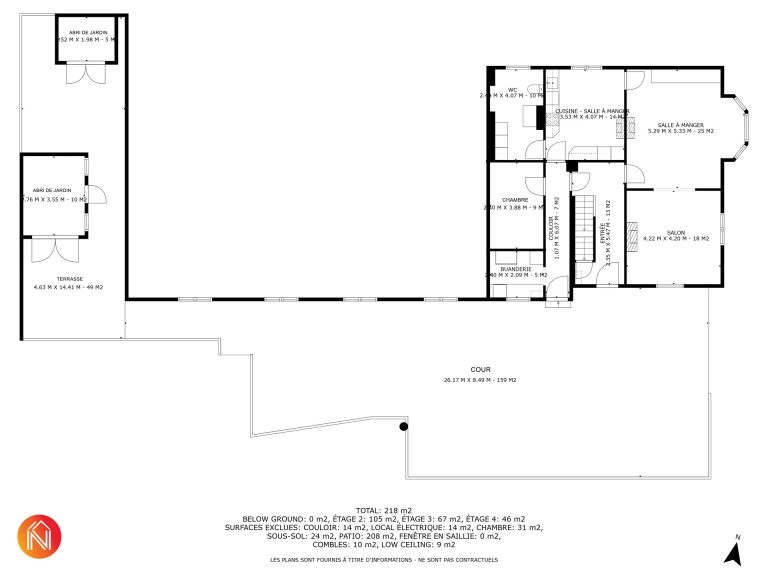
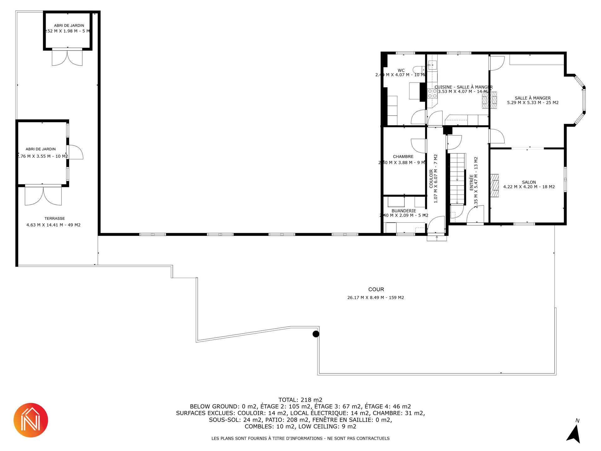
Nigel IMMO vous propose cette maison 3 façades à rafraîchir, d’une superficie de 274 m² sur une parcelle de 384 m². Idéale pour une grande famille ou un projet d’aménagement sur mesure, elle séduit par ses volumes généreux, sa distribution fonctionnelle et ses nombreuses possibilités d’agencement.
Dès l’entrée, le hall vous mène vers les différents espaces du rez-de-chaussée :
Un salon chaleureux
Une grande salle à manger spacieuse
Une cuisine fonctionnelle
Un espace de rangement avec WC indépendant
Une première chambre polyvalente (bureau, chambre d’amis, etc.)
Une buanderie pratique
Au 1er étage, vous découvrirez :
Deux chambres confortables
Une salle de bains fonctionnelle
Le 2ème étage offre :
Deux chambres supplémentaires
Une pièce de 10 m² à aménager en bureau, dressing ou salle de jeux
Un second WC
Enfin, le sous-sol dispose de trois caves idéales pour le stockage.
✅ Ses atouts :
Terrasse et cour agréable
2 abris de jardin
Beaux volumes sur chaque niveau et nombreuses possibilités d’aménagement
Proche des commerces, écoles, transports et axes autoroutiers
Informations pratiques :
PEB : G – 515 kWh/m².an
Revenu cadastral : 1.083 €
Prix : Offre à partir de 219.000 € (sous réserve d’acceptation des propriétaires)
Visite virtuelle 360°, plans 2D et prise de rendez-vous 24h/24 sur : www.nigel-immo.be
Contactez Nigel IMMO dès aujourd’hui pour organiser votre visite et découvrir tout le potentiel de cette belle maison familiale !




























